ГАРАНТИИ ПРОИЗВОДИТЕЛЕЙ Доставка до ТК - бесплатно! Подбор гидрораспределителя - бесплатно!
Насос ручной типа НПГ-М Насос ручной НПГ-М для перекачивания смазочного материала в наличии в ТД УралГидроМаш с гарантией производителя. Характеристики, цены. Доставка до ТК - бесплатно! Насос ручной типа НПГ-М Насос ручной типа НПГ-М
Поделиться:

Насос ручной типа НПГ-М

Перекачной насос НПГ-М относится к классу ручных рычажно-поршневых. Перекачивает из своего резервуара густые смазочные масла в резервуары ручных станций централизованной смазки.

Перекачиваемая смазка должна иметь характеристики:

  • число пенетрации не ниже 280 при темпер. +25 град.С;
  • отфильтровано, допускаются частицы до 0,25 мм;
  • иметь достаточную способность всасывания при темпер. воздуха до +15 ºС.

 

Цену уточняйте по номеру телефона
+7 (351) 200-22-88 или оставьте ваши контакты и мы вам перезвоним

Рычажно-поршневой ручной насос НПГ-ММ перекачивает смазочный материал индивидуально в места заправки, в том числе труднодоступные.

Требования к смазочным маслам:

  • кинематическая вязкость от 25 до 750 сСт;
  • фильтрация частиц более 0,25 мм

Насосы НПГ-М и НПГ-ММ изготавливаются в двух исполнениях:

– для умеренного климата (У)

– для работы в тропиках (Т)

Технические характеристики: насосы ручные типа НПГ-М

Наименование параметров  Величина 
НПГ-М НПГ-ММ
Тип насоса   Рычажно-поршневой
Производительность, см3/цикл   80

Давление нагнетания, Мпа (кгс/см2)
макс.
ном.

1,2 (12)

1,0 (10)

Усилие на рукоятке, не более, Н (кгс)   150 (15)
Рабочий объем, см3   90
Вместимость бака, дм3   16

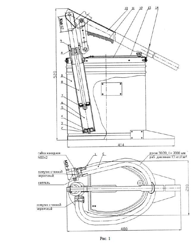
Рукав-деталь 20х200-13 МРТУ 38-5-6107-68
длина, мм
внутренний диаметр, мм

200

20

Масса насоса без смазки, кг  7,0 7,1 

 

Подготовка к эксплуатации

В комплект поставки входит насос в сборе, руководство по эксплуатации, рукав с наконечником и хомутик.

Перед началом использования необходимо освободить агрегат от консервационной смазки. Далее промыть насос керосином. Провести соединение рукава и штуцера, закрепить хомутиком.

Принцип действия

Модели насосов НПГ-М и НПГ-ММ являются рычажно-поршневыми насосами дифференциального действия. Всасывающая часть агрегата погружается в резервуар со смазкой. Шланг соединяется с фильтром заправляемой станции.

При работе двигающийся поршень создает разрежение, способствуя движению масла по шлангу в резервуар заправляющей станции или к месту непосредственной заправки.

Резервуар насоса заполняют смазочным материалом через люк с крышкой. Насосы оснащены ручкой для переноски.

Порядок работы

  • должен храниться в помещении, исключающем загрязнения агрегата и смазочного масла, исключить воздействия влаги, щелочей, кислот;
  • для насоса НПГ-М должна поддерживаться температура смазки 15-20 град.С;
  • необходимо заправлять насос смазочными маслами с характеристиками, позволяющими всасываться при данных условиях;
  • регулярно смазывать шарниры рычага;
  • двигать рычаг при работе плавно, без рывков;
  • не допускать перекачки в резервуары под воздушным давлением;
  • после использования установить шланг в держатель, опустить рычаг вниз и закрепить защелкой.

Остались вопросы? Напишите нам!

Пожалуйста, заполните поля формы,
чтобы наши специалисты могли
связаться с вами

Оставить заявку
Нпл двухпоточные насосы, устройство и принцип работы, проблемы в работе.
Подробнее
Нпл однопоточные устройство и принцип работы
Подробнее
Подача насосов НПл однопоточных - от 5,3 до 110,4 л/мин. Следует отметить малую требовательность к вязкости жидкости в отсутствие высоких скоростей течения.
Подробнее
Используя данный сайт, Вы соглашаетесь с условиями пользовательского соглашения и даёте разрешение на использование файлов куки(cookies).